| Название | Описание | |
|---|---|---|
|
Упругие (эластичные) муфты с обжимными втулками Эластичные муфты Rotex c обжимными втулками передают крутящий момент с вала на муфту с помощью сил трений. По сравнению со шпночным пазом эта конструкци обладает следующими преимуществами: отсутсвие концентраторов напряжений, отсутсвие люфта в крутильном направлении, большая нагрузочная способность. Это решение сочетает в себе Rotex и соединение Clampex |
Кол-во: |
Упругие (эластичные) муфты с обжимными втулками Rotex 6.0
Приводная муфта Rotex 6.0 - компенсирующая муфта кулачкового типа со звездочкой. Материал упругого элемента обеспечивает максимальный срок службы муфты. Характеристики муфты Rotex 6.0: температуры работы от -40 до +250 градусов; хорошие компенсирующие способности гашение крутильных колебаний; устойчивость на пролом; хорошие динамические характеристики; взрывобезопасность (полное соответствие 94/9/ЕС). Муфта Rotex с обжимными втулками хорошо предохраняет привод от динамических перегрузок и ударов
|
Типоразмер
|
Момент [Нм]
|
Размеры [мм]
|
Винты обжимной втулки
|
Масса ступицы с максимальным отверстием [кг]
|
Момент инерции ступицы с максимальным отверстием [кгм2]
|
|||||||||||||
|
92 Sh A
|
98 Sh A
|
|||||||||||||||||
|
TKN
|
TKmax
|
TKN
|
TKmax
|
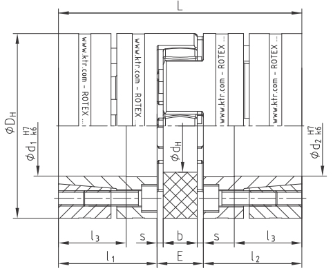
DH
|
dH
|
L
|
l1;l2
|
l3
|
E
|
b
|
s
|
M
|
кол-во z
|
TA[Нм]
|
M1
|
|||
|
Материал полумуфты и обжимной втулки - Сталь (St-H)
|
||||||||||||||||||
|
19
|
10,0
|
20
|
17
|
34
|
40
|
18
|
66
|
25
|
18
|
16
|
12
|
2,0
|
M4
|
6
|
4,1
|
M4
|
0,179
|
0,44 x 10-4
|
|
24
|
35,0
|
70
|
60
|
120
|
55
|
27
|
78
|
30
|
22
|
18
|
14
|
2,0
|
M5
|
4
|
8,5
|
M5
|
0,399
|
1,91 x 10-4
|
|
28
|
95,0
|
190
|
160
|
320
|
65
|
30
|
90
|
35
|
27
|
20
|
15
|
2,5
|
M5
|
8
|
8,5
|
M5
|
0,592
|
4,18 x 10-4
|
|
38
|
190,0
|
380
|
325
|
650
|
80
|
38
|
114
|
45
|
35
|
24
|
18
|
3,0
|
M6
|
8
|
14
|
M6
|
1,225
|
12,9 x 10-4
|
|
42
|
265
|
530
|
450
|
900
|
95
|
46
|
126
|
50
|
35
|
26
|
20
|
3,0
|
M8
|
4
|
35
|
M8
|
2,30
|
31,7 x 10-4
|
|
48
|
310
|
620
|
525
|
1050
|
105
|
51
|
140
|
56
|
41
|
28
|
21
|
3,5
|
M10
|
4
|
69
|
M10
|
3,08
|
52,0 x 10-4
|
|
55
|
375
|
750
|
685
|
1370
|
120
|
60
|
160
|
65
|
45
|
30
|
22
|
4,0
|
M10
|
4
|
69
|
M10
|
4,67
|
103,0 x 10-4
|
|
65
|
-
|
-
|
940
|
1880
|
135
|
68
|
185
|
75
|
55
|
35
|
26
|
4,5
|
M12
|
4
|
120
|
M12
|
6,70
|
191,0 x 10-4
|
|
75
|
-
|
-
|
1920
|
3840
|
160
|
80
|
210
|
85
|
63
|
40
|
30
|
5,0
|
M12
|
5
|
120
|
M12
|
9,90
|
396,8 x 10-4
|
|
Отверстия d1/d2 и передаваемый момент Tpобжимной втулки [Нм]
|
||||||||||||||||||||||||
|
Size
|
Ø10
|
Ø 11
|
Ø 14
|
Ø 15
|
Ø 16
|
Ø 19
|
Ø 20
|
Ø 24
|
Ø 25
|
Ø 28
|
Ø 30
|
Ø 32
|
Ø 35
|
Ø 38
|
Ø 40
|
Ø 42
|
Ø 45
|
Ø 48
|
Ø 50
|
Ø 55
|
Ø 60
|
Ø 65
|
Ø 70
|
Ø 80
|
|
19
|
27
|
32
|
69
|
84
|
57
|
94
|
110
|
|
|
|
|
|
|
|
|
|
|
|
|
|
|
|
|
|
|
24
|
|
|
70
|
87
|
56
|
97
|
114
|
116
|
133
|
192
|
|
|
|
|
|
|
|
|
|
|
|
|
|
|
|
28
|
|
|
|
108
|
131
|
207
|
148
|
253
|
285
|
315
|
382
|
330
|
433
|
503
|
|
|
|
|
|
|
|
|
|
|
|
38
|
|
|
|
|
|
|
208
|
353
|
395
|
439
|
531
|
463
|
603
|
593
|
689
|
793
|
776
|
|
|
|
|
|
|
|
|
42
|
|
|
|
|
|
|
|
|
358
|
398
|
483
|
416
|
547
|
536
|
625
|
571
|
704
|
851
|
865
|
|
|
|
|
|
|
48
|
|
|
|
|
|
|
|
|
|
|
616
|
704
|
899
|
896
|
1030
|
962
|
1160
|
1379
|
1222
|
1543
|
|
|
|
|
|
55
|
|
|
|
|
|
|
|
|
|
|
|
|
863
|
856
|
991
|
918
|
1119
|
1110
|
1247
|
1277
|
1672
|
1605
|
2008
|
|
|
65
|
|
|
|
|
|
|
|
|
|
|
|
|
|
|
1446
|
1355
|
1637
|
1635
|
1827
|
1887
|
2429
|
2368
|
2930
|
|
|
75
|
|
|
|
|
|
|
|
|
|
|
|
|
|
|
|
1710
|
2053
|
2059
|
2294
|
2384
|
3040
|
2983
|
3664
|
4148
|
Упругие (эластичные) муфты с обжимными втулками